开式搪玻璃贮罐
搪玻璃储罐(贮罐)用以存放酸、醇、气体等提炼的化学物质。根据结构分可分为:开式搪玻璃储罐(贮罐)、闭式搪玻璃储罐(贮罐)、卧式搪玻璃储罐(贮罐)等。它是石油、化工、粮油、食品、消防、交通、冶金、国防等行业必不可少的、重要的基础设施,我们的经济生活中总是离不开大大小小的储罐。太极标准开式搪玻璃储罐(贮罐)规格:50L、100L、200L、300L、400L、500L、800L、1000L、1250L、1500L、2000L、3000L、4000L、5000L等,也可根据用户需要进行非标开式搪玻璃贮罐定做,太极搪玻璃贮罐质量可靠、服务周到、用户放心。


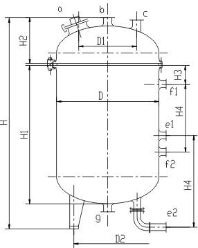
参数表:
| 型号 | ZK-50 | ZK-100 | ZK-200 | ZK-300 | ZK-400 | ZK-500 | ZK-800 |
| 公称容积 L | 50 | 100 | 200 | 300 | 400 | 500 | 800 |
| 实际容积 L | 61.3 | 121 | 240 | 363 | 469 | 590 | 884 |
| 尺寸(mm) | D | 400 | 500 | 600 | 700 | 800 | 800 | 1000 |
| D1 | 240 | 300 | 360 | 420 | 480 | 480 | 600 |
| D2 | 280 | 350 | 420 | 490 | 560 | 560 | 700 |
| H1 | 520 | 660 | 900 | 1000 | 1000 | 1240 | 1210 |
| H2 | 250 | 275 | 310 | 351 | 386 | 386 | 436 |
| H3 | / | 167 | 193 | 178 | 162 | 202 | 194 |
| H4 | / | 700 | 900 | 1000 | 1000 | 1200 | 1200 |
| -H | 1080 | 1245 | 1520 | 1661 | 1696 | 1936 | 1956 |
| 管口尺寸(mm) | a | 80 | 100 | 125 | 125 | 150 | 150 | 150 |
| b | 65 | 65 | 65 | 80 | 80 | 80 | 80 |
| c | 65 | 65 | 65 | 65 | 65 | 65 | 80 |
| d | / | / | / | / | / | / | 80 |
| e | / | / | / | / | / | / | / |
| f | / | 2-65 | 2-65 | 2-65 | 2-65 | 2-65 | 2-65 |
| g | 65 | 65 | 65 | 80 | 80 | 80 | 80 |
| h | 65 | 65 | 65 | 65 | 80 | 80 | 80 |
| 参考重量kg | 150 | 210 | 280 | 380 | 480 | 530 | 765 |
| 型号 | ZK-1000 | ZK-1250 | ZK-1500 | ZK-2000 | ZK-3000 | ZK-4000 | ZK-5000 |
| 公称容积 L | 1000 | 1250 | 1500 | 2000 | 3000 | 4000 | 5000 |
| 实际容积 L | 1112 | 1391 | 1674 | 2219 | 3336 | 4450 | 5560 |
| 尺寸(mm) | D | 1000 | 1200 | 1200 | 1300 | 1450 | 1600 | 1600 |
| D1 | 600 | 720 | 720 | 780 | 870 | 960 | 960 |
| D2 | 700 | 840 | 840 | 910 | 1015 | 1120 | 1120 |
| H1 | 1500 | 1330 | 1580 | 1780 | 2140 | 2340 | 2890 |
| H2 | 436 | 486 | 486 | 511 | 559 | 606 | 606 |
| H3 | 184 | 188 | 238 | 224 | 261 | 210 | 193 |
| H4 | 1500 | 1300 | 1500 | 1700 | 2000 | 1300 | 1600 |
| -H | 2248 | 2128 | 2378 | 2603 | 3011 | 3258 | 3808 |
| 管口尺寸(mm) | a | 150 | 200 | 200 | 400×300 | 400×300 | 400×300 | 400×300 |
| b | 80 | 80 | 100 | 100 | 125 | 125 | 125 |
| c | 80 | 80 | 80 | 80 | 100 | 100 | 100 |
| d | 80 | 80 | 80 | 80 | 100 | 100 | 100 |
| e | / | / | / | / | / | 2-65 | 2-65 |
| f | 2-65 | 2-65 | 2-65 | 2-65 | 2-65 | 2-65 | 2-65 |
| g | 80 | 80 | 100 | 100 | 125 | 125 | 125 |
| h | 80 | 80 | 80 | 80 | 100 | 100 | 100 |
| 参考重量kg | 860 | 1020 | 1120 | 1470 | 1970 | 2560 | 2910 |
产品发布日期:2026.03.20