产品特点与用途:
SG系列离心机按其分离原理分为过滤型和沉降型两种形式(本说明适用于过滤型离心机),进料卸料为间隙式。离心机在高速运转(装料转速)时,开始装料,物料经进料管,布料管至布料盘,在布料盘上获得足够的离心力而甩至转鼓壁,在离心力作用下通过滤网将液体滤出,液体(母液)经底盘集液槽至出液管排出,当滤饼重量(或体积)达到机器额定装料重量(或容量)时,关闭进料阀,离心机加速至额定转速,对物料更进一步分离,如物料需要洗涤,打开洗涤阀,对滤饼进行洗涤,同时将洗涤液滤出,当达到分离要求后,离心机低速运转,刮刀装置按规定程序进行刮料,物料经转鼓卸料孔穿过从底盘卸料斗落至接料盘或输送带上,完成一次工作循环。
本离心机适合于中小颗粒(≥0.01毫米)的悬俘液分离脱液,可以广泛应用于化工、制药、冶金、食品等工业部门。且具有自动离心机的优点,筒体基本密封可防止某些有毒,强腐材料外泄伤人,安全系数高。适用于粘度大、亲水性强、难分离的含中细度的颗粒状或纤维状物的悬浮液分离;也适用于部分颗粒状、纤维状、片状等呈疏松状态或略带粘性的结晶状固态物料的分离。
结构与原理:
调速电动机带动转鼓旋转,调节转速至中速,物料由上部加入转鼓经布料均匀洒布到鼓壁,升至高速后,在离心力作用下,液相穿过滤布和鼓壁滤孔排出,固相截留在转鼓内,待转鼓降至低速后,旋转刮刀将固相从鼓壁刮下由离心机下部排出。
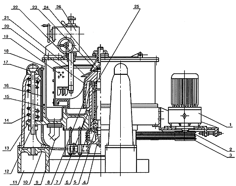
离心机结构图:


技术参数:

订货须知:
针对不同的分离要求,我们设计了相应型式供客户选择,因此客户在订货时,可对以下情况作出确认:
材质:与物料接触部分的材料可为不锈钢、钛合金、碳素钢或衬橡胶、衬塑料等。
驱动方式:普通异步电动机、隔爆型异步电动机、电磁调速电动机或变频调速等。
其它要求。