概述
F46衬里放料阀,主要安装在反应釜底部作放料使用。
结构特点
同F46衬里球阀,主要区别在于二端法兰大小的不同,大头同设备相连,一般采用0.6MPa级;小头同管道相连,一般采用1.6MPa级。
设计规范
遵循GB12237/API608/API6D标准。
驱动方式
手动,蜗轮传动,气动,电动。
性能规范
| 设计与制造 | 结构长度 | 联结法兰 | 压力试验 | 产品标志 | 供货要求 |
| GB/T12237 | HG/T3704-2003 GB/T1221 | HG20592-97 | GB/T13927-92 | GB12220 | GB/T12252 |
公称压力:PN1.0-1.6(MPa),公称通径:DN15-DN250(mm)。
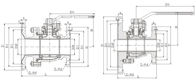
F46衬里放料阀/非标放料阀示意图

主要连接尺寸及重量
| 公称通径 | 标准值 | 参考值 | |||||||||
| DN(mm) | L | D | D1 | D2 | f | b | Z-Φd | Do | H | W(kg) | |
| PN1.0(MPa) | |||||||||||
| 69(标) | 100/50 | 200 | 160/230 | 125/190 | 100/165 | 3/4 | 20/22 | 4-Φ18/8-Φ14 | 250 | 125 | 13 |
| 125/80 | 250 | 195/245 | 160/210 | 135/185 | 4/4 | 22/24 | 4-Φ18/10-Φ14 | 300 | 184 | 22 | |
| 79(标) | 70/32 | 165 | 140/160 | 100/130 | 75/100 | 3/3 | 18/20 | 4-Φ18/4-Φ14 | 200 | 115 | 10 |
| 80/40 | 180 | 145/185 | 110/150 | 85/125 | 4/4 | 18/20 | 4-Φ18/4-Φ18 | 250 | 125 | 11 | |
| 100/50 | 200 | 160/205 | 125/170 | 100/145 | 3/4 | 20/22 | 4-Φ18/4-Φ18 | 250 | 125 | 11.5 | |
| 125/80 | 250 | 195/245 | 145/200 | 135/175 | 4/4 | 22/24 | 4-Φ18/8-Φ18 | 300 | 184 | 22 | |
非标放料阀主要连接尺寸
| 公称通径 | 标准值 | 参考值 | |||||||
| DN(mm) | L | D | D1 | D2 | f | b | Z-Φd | Do | H |
| 80/50 | 175 | 160/195 | 125/150 | 100/135 | 3/3 | 20/20 | 4-Φ18/8-Φ18 | 250 | 135 |
| 100/50 | 175 | 160/215 | 125/170 | 100/155 | 3/3 | 20/22 | 4-Φ18/8-Φ18 | 250 | 135 |
| 125/50 | 175 | 160/240 | 125/200 | 100/180 | 3/3 | 20/24 | 4-Φ18/8-Φ18 | 250 | 135 |
| 125/65 | 190 | 180/240 | 160/225 | 120/180 | 3/3 | 20/24 | 4-Φ18/8-Φ18 | 300 | 145 |
| 125/80 | 220 | 195/265 | 125/170 | 135/210 | 3/3 | 22/24 | 8-Φ18/8-Φ18 | 350 | 185 |
| 150/100 | 280 | 215/265 | 180/225 | 155/190 | 3/3 | 22/24 | 8-Φ18/8-Φ18 | 400 | 195 |
表格中分子为公称通径及相应尺寸,分母为大端法兰尺寸