沈阳优特克粉体科技有限公司
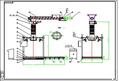
UFB-6A型吨袋包装机

查看原图
关注:8082
型号:UFB-6A型
品牌:优特克
产地:沈阳
自动化程度:半自动包装机
设备种类:充填机械

设备特点:
● 该机型是一款结构简单的吨袋包装设备,采用底部计量的称重方式,称重传感器安装在设备的下端。
● 填充头由内环和外环组成,内环为物料通道,外环为排气通道,可分别实现物料流动与粉尘排放。
● 具有完善的检测及控制功能、工作可靠、计量精度高、操作简单、维护方便,广泛应用于非金属矿粉体等行业。


产品发布日期:2026.03.20
沈阳优特克粉体科技有限公司