GZJM-1.5过滤灌装机是油墨、油漆等行业半自动过滤、装灌的专用设备。经济高效,使用方便,维护简单,尤其适合UV墨的过滤灌装。本设备主机与电控箱分离,底部均装有尼龙滚轮,可任意位置移动使用,方便清洗。电机采用变频调速。
工作原理:
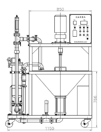
1) 减速电机①带动螺杆灌装泵②运转,将料斗中物料送至过滤筒③,经网袋过滤后通过管道由灌装头放料口④输出。
2) 放料口的开闭采用气动控制⑤,配以用电子秤,以达到定量灌装的目的。
3) 放料口闭合时,管道中多余的物料通过回料管⑥回到料斗中。
4) 为便于日常维护,专门设计了清洁冲气用回路。

主要技术参数:
1、驱动电机功率:1.5kw
2、变频器功率:2.2kw
3、加热板功率:4×100w
4、气缸:Φ45×75 mm
5、过滤网:60目/in2(用户也可自选)
6、泵口径:Φ80mm
7、输料管公称通径:Φ32 mm
8、灌装称重范围:0.04~6 kg(称重误差5g)
9、外形尺寸:1600×800×1600mm (长×宽×高)
10、重量:150kg
设计特点:
1、加热装置 在常温下,UV 胶印油墨是种黏稠状的非均质流体。由于印刷对油墨有流变特性和触变性能的要求,因而油墨的流动性对温度和剪切速率的敏感度较大。利用好这种特性对过滤作业和灌装都很重要。例如,在0℃以下,有些胶印油墨已经变成不能流动的半固态,此时如果启动油墨输送泵,电机的负载将很大,甚至不能启动,导致过滤作业无法进行。为保护机械装置,在系统内设置了加热装置。
在启动油墨输送泵前,可以先对系统加热(建议温度设定在 20~30℃)尤其在车间温度比较低时更需对系统进行预热。在系统设计中,为确保油墨流动流畅,没有死角,还专门设定了温度上限。当温度达到上限时,加热就自动停止,以免油墨过热;油墨加热到定温度后启动输送泵,让油墨在机器内循环均匀后再开始包装作业。
2、 压力保护装置 过滤器成封闭式,这样就只能通过压力表来传送过滤网被滤渣堵塞情况的信息。随着过滤的进行,过滤网被滤渣堵塞的程度也会增大,同时过滤阻力也会增加,即压力表所指示的数值也在增大。当达到定程度时(如压力表所显示的值达到 0.7 MPa 时),过滤效率已经处于较低状态,操作员应及时更换过滤介质(过滤网)。在设计这套过滤装置时,将机器的保护压力设定为 0.8MPa。当灌装机的压力表达到 0.8 MPa 时,机器会自动停止,并提醒操作员应及时更换过滤网。切勿自行调高保护压力,以避免因系统压力过高而引起泵的泄漏和压力表的损坏。
应用特点:
1、提高灌装速度 以 1 kg 包装为例,GZJM-1.5 型 UV过滤灌装机的灌装速度约为 7 s/罐,且速度是可以调节的。据某大型油墨企业的统计数据表明,使用 GZJM-1.5 型过滤灌装机灌装UV胶印油墨(每批料约为450~480 kg),可在 1 h 内完成。
2、提高产品质量 在待装罐的油墨里,一般含有少量较大颗粒的颜料粒子和其它机械杂质。在灌装时,通过过滤的方法可以去掉这些物质。因此,采用过滤灌装的工艺能提高油墨产的质量。目前,生产高档 UV油墨已普遍采用这种工艺。
3、提高称量精度 无论是称量精度还是称量效率,电子称自动反馈称量系统都比手工操作高得多。每罐的重量误差在±5 g 左右。影响称量精度的因素有两个方面:⑴ 电子秤的敏感度和电子秤系统感应、信息反馈速度,为此,在该机的机械设计中已经作了充分考虑。⑵ 提前量的设定,这与油墨的种、性能和油墨灌装时的流速、温度有关。若灌装速度慢,则重量误差波动较小;若灌装速度快,则重量误差波动大。只有找到***流速和温度,达到稳定的状态,才能设定好电子秤的提前量,确保灌装达到高精度。此外,用户还可以凭借经验和厂的帮助下对该设备进行调节。
4、降本增效 根据实际测定和计算,较大规模的油墨厂每台过滤罐装机每年从精确称量中所能获得的收益约是这台机器投资额的一半。除此之外,产品质量的提升所创造的隐性收益更是非常可观。
外形图:

准备与操作:
1、准备:接通电源,气源(气压0.4-0.6MPa),连接好电子称即可使用
2、操作:(1)合上电控箱内空气开关,电源指示灯亮。
(2)将料输入料斗。各按钮功能见下表
| 操作 | 功能说明 | |
| “泵开”按钮 | 启动灌装泵 | |
| “泵停”按钮 | 停止灌装泵并关闭电加热 | |
| “加热”按钮 | 开启电加热 | |
| “关闭”按钮 | 关闭电加热 | |
| “调速”旋钮 | 灌装泵转速调节 | |
| “手动/自动”旋钮 | “手动”档 | “自动”档 |
| “灌注”按钮 | 灌装头出料 | / |
| “停止”按钮 | 灌装头断料 | / |
| 灌装头旁出料开关 | / | 灌装头出料 |
| 电子称称重设定 | / | 灌装头断料 |
(3)变频器操作面板按键用于变频器参数设定,通常不使用。
(4)电子称的设定和使用详见称控制器的说明书
使用注意事项:
1、泵的运转方向从上往下看呈顺时针运转。
2、在灌装机物料通道中过滤筒旁管道上的电接点压力表是用来防止泵损坏或筒内压力过高而设置的自动开关(Pmax≤0.8MPa)切勿随意调节。
3、过滤筒内的过滤网应经常清洗,以免杂物过多使过滤筒内压力升高。(如果过滤网堵塞,过滤筒内压力将会超过设置的压力,机器自动断电。)
4、料斗、灌装漏嘴应经常清洗, 保持清洁无污。
5、灌装完毕关闭“泵停”按钮。切断电控箱内自动开关,拔除电源插头。
6、使用后注意做好清洁保养工作。
7、如电子称由用户提供,电路和操作上的相应变化恕不另行说明。
安全要求:
本机是用于化工原料生产过程的,用户在使用前应当按相关安全规定 建立适当的安全和卫生防护措施并确定规章制度。与化工原料接触有关的安全问题应当由用户予以确立,不属本说明书的说明范围。
故障分析:
1、打开机器下部的铁门,泵的运转方向从驱动传动(链轮)侧看呈逆时针运转。
2、机器上有磁助电接点压力表是用来防止泵损坏或筒内压力过高而设置的自动开关(Pmax≤0.8MPa),切勿随意调节。
3、如机器电流的负载时过大,电控箱内的空气开关会跳闸,则需重新合闸。
4、电子秤的信号线不要拉扯以免影响电子秤的使用。
维护保养:
1、养成经常检查设备的习惯,每隔一段时间,检查各部分的拧紧螺栓是否松动,加以紧固。
2、过滤筒内的过滤网应经常清洗,以免杂物过多使过滤筒内压力升高,清洗时打开清洗阀门(如果过滤网堵塞,过滤筒内压力将会超过设置的压力,机器自动断电)。
3、进料斗、气缸漏嘴应经常清洗, 保持清洁无污。
4、箱体内减速机初次运转3000小时后应更换2#锂基脂。更换前应去除残存污油。以后每隔6个月添加一次。
5、减速机与泵之间连接的链条隔段时间也需加黄油以减少磨损。
6、电控箱内的油水分离器如果容器中油已减少或消失,需加普通机油。
7、检查灌装的限位开关是否失灵,检查电控制箱上的各个按钮是否失效。
8、检查机器上的压力表是否能正常显示,如发现损坏,应更换。
售后服务:
1、产品质量问题,在产品售出7天内提出异议并且产品未有损坏的,我司负责无条件免费退换货;
2、本产品全国联保,质保期:1年质保;
3、质保期内如有产品质量问题,免费维修;质保期外长期提供技术支持;
4、所有产品售后问题,请直接联系我司,我司售后服务团队会在30分钟内响应处理。