HZ3051T型压力变送器
HZ3051T型压力变送器是一款采用硅材料传感器结合单片微型计算机的高性能、高可靠性的标准压力变送器,同时也可以基于现场总线HART协议技术,在4-20mADC输出上叠加高频信号进行远程通讯,可方便用户进行现场的组态与设置。具有工作可靠、性能稳定、安装使用方便、体积小、重量轻、性能价格比高等点,能在各种正负压力测量中得到广泛应用。它采用进口硅材料芯体或陶瓷芯体作为压力检测元件,传感器信号经高性能电子放大器转换成电流或电压统一输出信号,能与各种型号的动圈式指示仪、数字变送器、电子电位差计配套使用,也能与各种自动调节系统或计算机系统配套使用。
应用场合:
本产品广泛应用于水厂、炼油厂、污水处理厂、建材、轻工、机械等工业领域,实现对液体、气体、蒸汽压力的测量。
产品特点:
产品做工精细,外形气派;
具有反向极性和限流保护;
激光调阻温度补偿;
量程可现场调节;
范围宽抗腐蚀,适于多种介质;
过载及抗干扰能力强,性能稳定。
性能指标:
测量介质 | 气体、液体、油等与316兼容的介质 | 测量形式及范围 | 表压(G)-最大(0~60)MPa, 最小(0~0.5)KPa | 绝压(A)-最大(0~40)MPa, 最小 (0~5)KPa | 负压(B)- (-0.1~40)MPa, 最小(-0.2~0.2 )KPa | 精度等级 | 0.25% | 过载能力 | 量程的2~5倍 | 长期稳定性 | 小于0.25%FS/年 | 供电电源 | 15~36 VDC(标定电压24VDC) | 输出信号 | (4~20)mA(二/三线制)(智能型可带HART协议输出)、(0~10/20)mA (0~5)V、(1~5)V、(0~10)V | 显示方式 | 指针表头或数字显示可选配 | 校准 | 通过调节精密电位器实现对零点、量程调节 (智能型通过手操器、或表头按键、或微机通讯进行调节) | 工作温度 | -40~80℃ 补偿温度:-20~70 ℃ | 过程连接 | M20×1.5外螺纹(Ф3内孔),或用户xuan定 | 隔离膜片材料 | 316 不锈钢 | 传感器接口材料 | 1Cr18Ni9Ti | 外壳材料 | 合金铝 | 防护等级 | IP65 |
|
结构指标
结构材料 | 外壳:聚氨酯烤漆低铜铸铝合金,“O"型圈密封结构:氟橡胶 |
过程连接 | 标准提供M20×1.5外螺纹,根据客户需要进行加工 |
电气连接 | 可根据需要从任何一个出口引出,适用电缆直径在φ8.5~φ10.0工业电缆作为引线,以便密封.引出接头可选用通用电缆接头M20×1.5,不引线一端用端盖封住 |
产品选型:
口 | 量程(注明压力量程范围) |
| G、表压 A、**压力 B、密封压力 C负压 | 口 | 膜片材料 |
| K、扩散硅(默认) T、陶瓷压阻 P、陶瓷电容 | E口 | 输出信号 |
| 1、(0~5)VDC 2、二线制(4~20)mA(默认) 3、(0~10)mA 4、智能型4-20mA+HART协议输出 5、其它注明 | A口 | 精度 |
| 1、0.25% | C口 | 过程连接方式 |
| 1、外螺纹M20×1.5(默认) 2、外螺纹G1/2 3、外螺纹NPT1/2 4、 卫生型齐平膜 5、法兰固定 6、其它注明 | D口 | 显示方式 |
| 1、无显示 (默认) 2、0~100%线性指示 3、LCD数字显示(液晶) 4、LCD数字0~100%显示(液晶) 5、LED数码管显示 | F口 | 防爆等级 |
| 1、标准型、不防爆(默认) 2、本安型 3、隔爆型 |
|
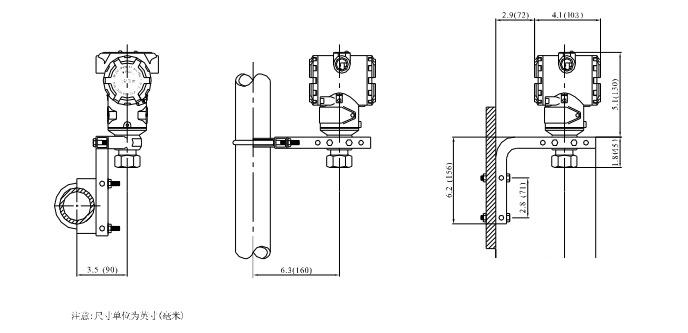
外形结构及安装尺寸示意图:


